top of page

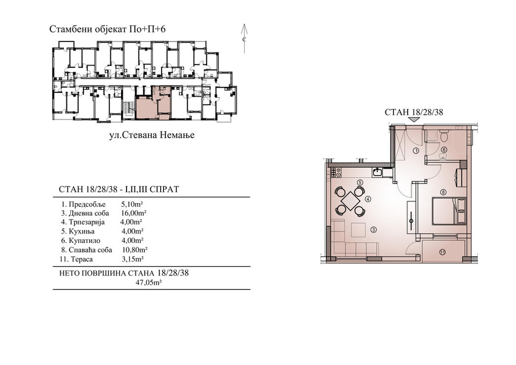
STRUKTURE STANOVA - ULICA STEVANA NEMANJE

Po+P+6

© 2018 Niš, Serbia

  • Facebook - Grey Circle
  • Grey Instagram Icon
bottom of page